2022/2023
Architectural Bronze Award
DESIGNED BY
Shawn Lee Soo Pang
SCHOOL
NPS AYDA (Phase 2) NPS AYDA (Phase 2) 100% 10 E6 National University of Singapore National University of Singapore Turn on screen reader support To enable screen reader support, press ⌘+Option+Z To learn about keyboard shortcuts, press ⌘slash2 collaborators have left the document.
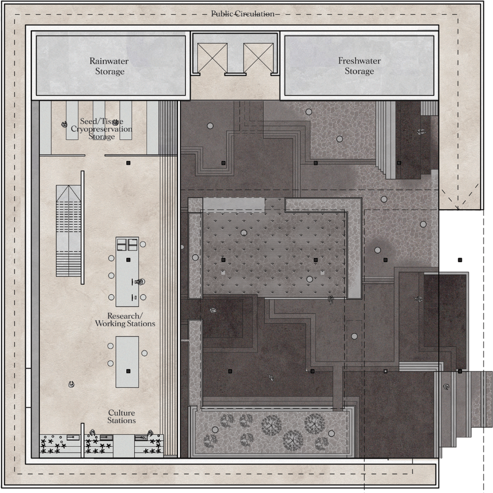
The design amplifies the experiential qualities of water as an element and representing this natural system in a highly curated urbanised diorama. Through the symbiotic relations with water and nature, the centre becomes a crucial starting point for future water developments and nature repopulation, aided by active public participation.